• <ze class="sibob"></ze>





  • 麻豆MV免费观看,麻豆三级视频,国产精品麻豆传媒,麻豆APP在线观看入口

    上海環貿廣場寫字樓出租信息

    作者:Bliss Office時間:2020-07-23

    【上海環貿廣場寫字樓出租項目簡介】

    上海環貿廣場位於上海市淮海中路陝西南路路口,地理優勢得天獨厚。項目擁有氣魄宏大的超甲級雙塔辦公樓、逾12萬平方米超大型綜合性商場International apm,和高端住宅公寓,總樓麵麵積達350萬平方呎,由130 萬平方呎的高級商場、兩幢寫字樓及兩幢共64單位的豪宅組成,商場地下直駁地鐵1、10、12號線陝西南路站,實現三線零換乘,榮獲美國(LEED)環保金級前期認證。

     

    【上海環貿廣場寫字樓出租參數詳情】

    租賃熱線:400-8090-660

    租賃報價:13.5元~15元/平/天左右

    項目地址:上海市徐匯區淮海中路999號

    建築麵積:325000平米

    辦公麵積:一期63000平米(7-36層)

    二期58000平米(8-31層)

    整層麵積:一期2426平

    二期2800平

    分割麵積:320平~2800平

    樓層淨高:標準層3米(行政層4米)

    得  房  率:70%

    架高地板:標準層180mm(行政層310mm)

    電梯項目:客16部 貨8部

    車位數量:地上300,地下500個

    物  業  費:43元

    物業管理:上海啟勝物業管理服務有限公司

    入住企業:阿迪達斯(中國), 金杜律所, 保樂力加中國,棒約翰餐飲、蘋果貿易(上海)等

    周邊大廈:淮海國際廣場、嘉華中心

     

     

    上海環貿廣場租賃寫字樓交通】

    地鐵1號、10、12號線陝西南路站


    上海環貿廣場項目立麵圖

     上海環貿廣場寫字樓出租


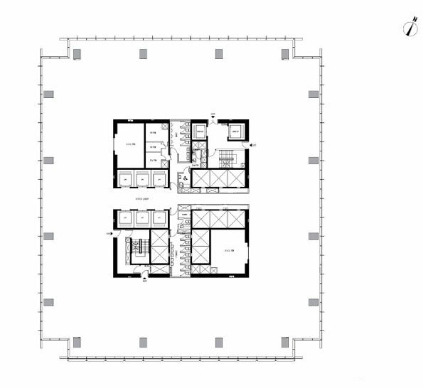
    上海環貿廣場寫字樓平麵圖

    上海環貿廣場寫字樓租賃


    上海環貿廣場項目實景


    點擊這裏查看更多徐匯區寫字樓租賃信息

    網站地圖