長寧其他
長 寧-中山西路999號
10號線-宋園路、3號線-虹橋路、4號線-虹橋路


In Tenant Type
Building photos
Building introduction
寫字樓
2500方
21 層
68%
2006年
中遠物業
25元/平米/月
淨高2.7米
VAV中央空調係統
客梯6部、貨梯2部、自動扶梯2部
1000元/月
是
華聞國際大廈地處虹橋開發區,南接古北國際豪宅社區,北靠天山路商業區,東臨徐家匯商業中心,是距離國際機場 最近的核心商務區,商務配套成熟完善,周邊高檔辦公樓、五星級酒店、大型購物中心林立,有十多家領事館、近千家涉外機構在此入駐。
華聞國際大廈總體占地麵積約為7900平方米左右,總建築麵積地上約5萬平方米,地下約5024平方米,容積率5.29%,整體建築呈塔式依次由20、17、14層錯落展開從而形成南高北低走勢。在建築風格上采用了具有強烈新古典主義特征的ART DECO風格,強化了豎向線條的力度,增加了建築的俊秀挺拔。
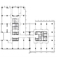
華聞國際大廈戶型圖如下:

層高:淨高2.7米
層數:21層
物業:上海中遠物業管理發展有限公司
物業費:25元/平米•月
車位約:200個
車位月租金:1300元/位•月
空調:VAV中央空調係統
空調費物業管理費包含空調費
空調開放時長:周一至周五:8:00至18:00
電梯客梯:6部,貨梯2部
網絡:電信、聯通、移動、鐵通
入駐企業有:喬山健康科技、鄂爾多斯貿易等
Public transit
長 寧長寧其他中山西路999號

How To Commissin Bliss Office
