外灘
黃 浦-延安東路58號
10號線-豫園、14號線-豫園


In Tenant Type
Building photos
Building introduction
寫字樓
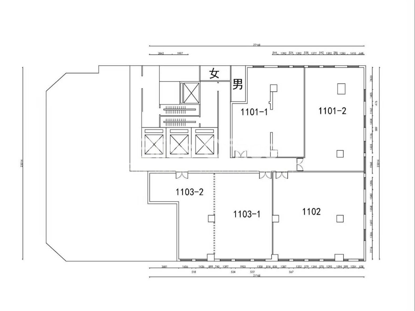
1200方
16層
69%
1998年
仲量聯行
30元/平米/月
淨高2.4米
VAV中央空調係統
客梯3部,貨梯1部
1400元/月
是
高登金融大廈是由實力雄厚的上海政通置地有限公司鼎力推出的甲級寫字樓。大廈主樓高69米,地下三層車庫。整個大廈匯集名師匠心,風格雋永,外觀豪華氣派,內部典雅大方。大廈選用各類優質材料,華實並重,融合現代化建築藝術,通訊科學,環境科學、於一體。大廈功能齊全,物業管理服務優質,現代化設施完善,是辦公首選的智慧型建築。
企業名稱:經濟日報,所屬行業:廣告/媒體、
企業名稱:韓國泛洲海運,所屬行業:物流/運輸、
企業名稱:裕利集裝箱服務,所屬行業:物流/運輸、
企業名稱:白玉蘭律師事務所,所屬行業:專業服務/教育/培訓、
企業名稱:經濟報社,所屬行業:政府/非贏利機構/其他
軌道交通:距10號線豫園站592米; 距2號線南京東路站782米; 距8號線老西門站682米;
公共交通:隧道九線、71、123、123區、135、307、317、868、145、934、316、952b、26、926、127、311、320、33、55、65、305、910、928、17、42
銀行:民生銀行外灘支行、盤穀銀行上海分行、華夏銀行外灘支行、工行外灘支行、建行第三支行、友利銀行、深發展銀行外灘支行、工行第一支行、郵政儲蓄銀行金陵東路支行、工行四川中路支行
酒店:上海外灘華爾道夫酒店、上海外灘華爾道夫酒店、賓龍商務酒店、上海興宇大酒店、上海創業大酒店、南海飯店、廣州市鴻孚物流有限公司上海分公司、新城飯店、黃浦會、老船長酒店
餐飲:錦江大廚(聯誼店)、米氏西餐廳、肯德基(外灘店)、僑香居港式茶餐廳、皇中皇大餅(四川中路店)、HOW好吧
超市:可的(四川店)、好德便利(廣東店)、光明便利(廣東店)、好德便利(金陵店)、全家便利店(福州路店)、羅森(福州路店)、喜士多(中山東二路店)、好德便利(江西店)、全家便利店(河南中路二店)、家得利超市(河南南路店)
商場:上海文物商店、新外灘商廈、上海灘商廈、悅園商廈、上海市黃浦區興業家用電器商店、VERTU(外灘旗艦店)、外灘18號、城隍廟第一購物中心、青藤苑、華泰珠寶商場
Public transit
黃 浦外灘延安東路58號

How To Commissin Bliss Office
