淞虹路
長 寧-天山西路568號
2號線-淞虹路


In Tenant Type
Building photos
Building introduction
寫字樓
1200方
9 層
68%
2009年
千翔物業
20元/平米/月
淨高2.8米
VRV分體係統
客梯3部,貨梯3部
800元/月
是
統一企業廣場是2號線淞虹路地鐵站上蓋建築,直通地鐵。
樓下配套餐飲居多,周邊多條公交,地鐵15分鍾到達市區,10分鍾到達虹橋綜合交通樞紐。
是現代化高級辦公樓,地理位置優越交通便利,設施齊全,裝修現代,房型方正,租金合理,設施齊全,裝修現代,是企業領袖精明睿智之選擇,房型布局合理,靈活分割可滿足各企業人性化的設計追求。
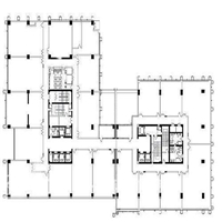
統一企業廣場戶型圖如下:

統一企業廣場亦有聯合辦公產品出租:聯合辦公豌豆空間&聯合辦公創富港
層高:淨高2.8米
層數:30層,地下3層
物業:千翔物業
物業費:20元/平米•月
車位約:100個
車位月租金:800元/位•月
空調:VRV分體空調係統
空調開放時長:租戶自行控製
電梯客梯:3部,貨梯3部
網絡:電信、聯通、移動
入駐企業有:統一企業、星巴克上海東方鱷魚服飾、上海仰德貿易、易優百辦公用品、北京普利訊科技發展等
Public transit
長 寧淞虹路天山西路568號

How To Commissin Bliss Office
