• <ze class="sibob"></ze>





  • 麻豆MV免费观看,麻豆三级视频,国产精品麻豆传媒,麻豆APP在线观看入口

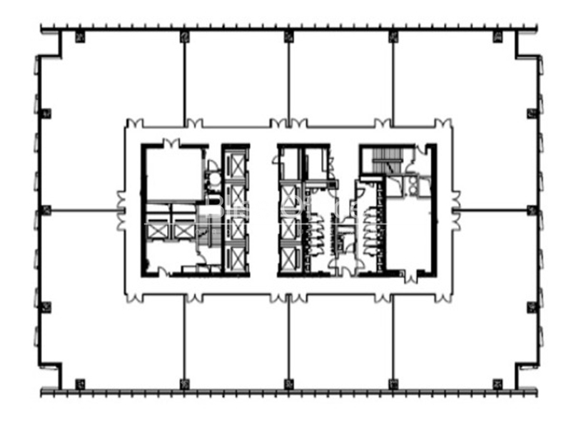
    星薈中心出租樣板間整層2520方可分割

    分享
    52.89 萬元/月
    • 單價:6.9元/㎡/天
    • 物業費:39.0元/㎡/月
    2520㎡
    建築麵積
    250-300人
    容納工位
    標準交房
    裝修
    • 虹 口-北外灘
    • 12號線-天潼路
    • 星薈中心

    房源專屬顧問為您服務

    徐佳樂Jerry

    13052210023
    預約看房

    公共交通

    Public transit

    星薈中心

    虹 口北外灘天潼路328號

    網站地圖