• <ze class="sibob"></ze>





  • 麻豆MV免费观看,麻豆三级视频,国产精品麻豆传媒,麻豆APP在线观看入口

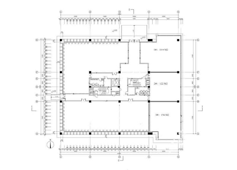
    應氏大廈,800平可分割,標交,房型方正

    分享
    14.60 萬元/月
    • 單價:6.0元/㎡/天
    • 物業費:30.0元/㎡/月
    800㎡
    建築麵積
    80-140人
    容納工位
    標準交房
    裝修
    • 黃 浦-南京東路
    • 2號線-南京東路、10號線-南京東路
    • 應氏大廈

    房源專屬顧問為您服務

    徐佳樂Jerry

    13052210023
    預約看房

    公共交通

    Public transit

    應氏大廈

    黃 浦南京東路天津路180號

    網站地圖