• <ze class="sibob"></ze>





  • 麻豆MV免费观看,麻豆三级视频,国产精品麻豆传媒,麻豆APP在线观看入口

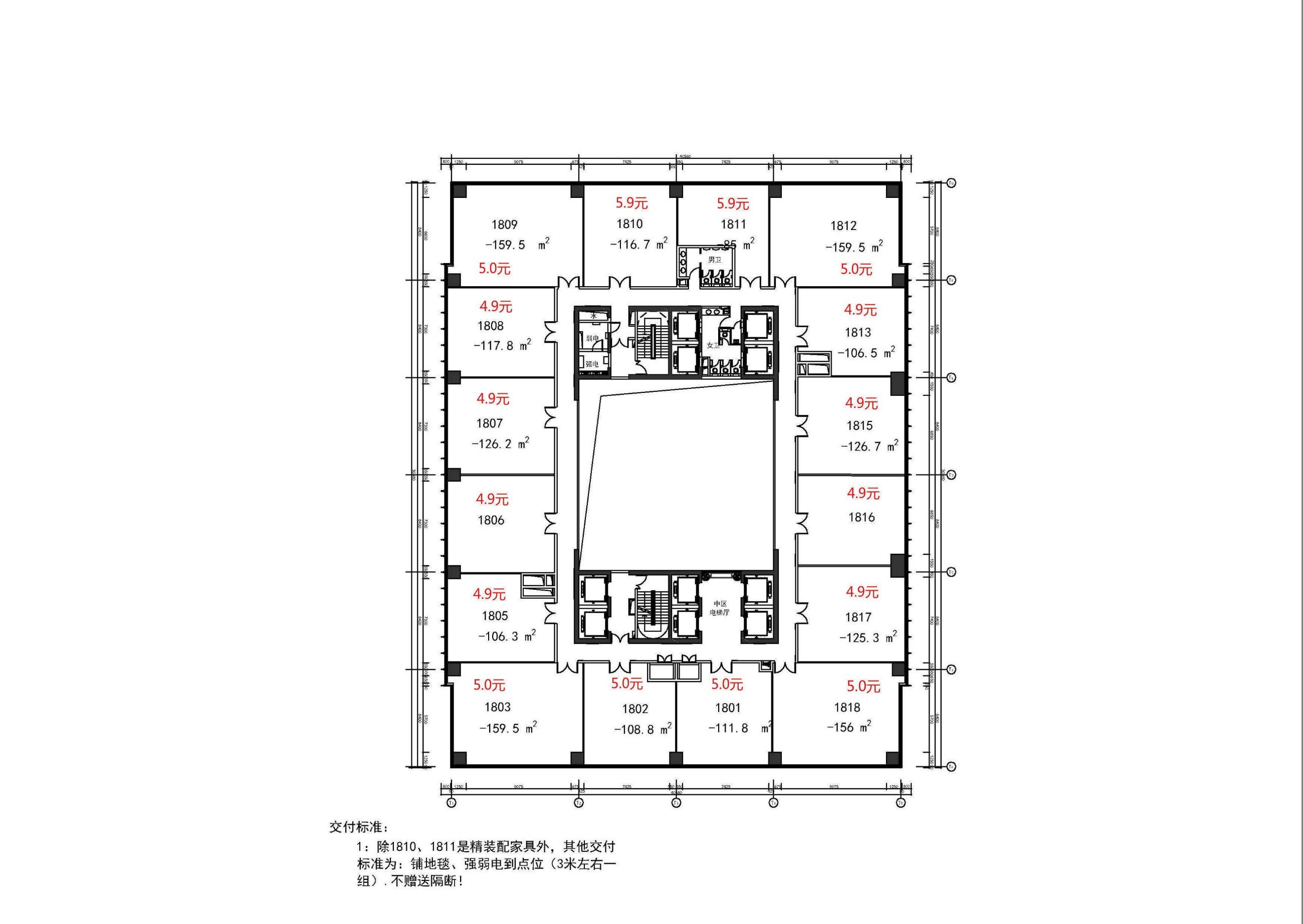
    莘莊龍之夢出租108方戶型,精裝修,拎包入駐

    分享
    1.96 萬元/月
    • 單價:5.9元/㎡/天
    • 物業費:30.0元/㎡/月
    109㎡
    建築麵積
    10-20人
    容納工位
    帶裝修家具
    裝修
    • 閔 行 -莘莊商務區
    • 1號線-莘莊、5號線-莘莊
    • 莘莊龍之夢

    房源專屬顧問為您服務

    江帥軍Evan

    13052210023
    預約看房

    公共交通

    Public transit

    莘莊龍之夢

    閔 行 莘莊商務區滬閔路6088號

    網站地圖