• <ze class="sibob"></ze>





  • 麻豆MV免费观看,麻豆三级视频,国产精品麻豆传媒,麻豆APP在线观看入口

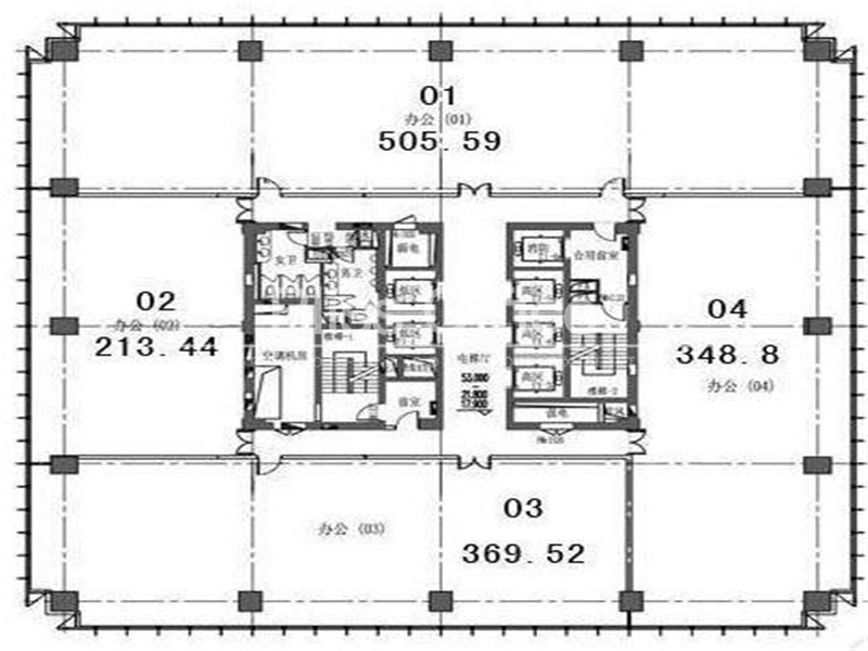
    古北商圈,東銀中心出租稀少213方戶型,高島屋旁

    分享
    5.83 萬元/月
    • 單價:9.0元/㎡/天
    • 物業費:33.0元/㎡/月
    213㎡
    建築麵積
    20-40人
    容納工位
    標準交房
    裝修
    • 長 寧-虹橋古北
    • 10號線-伊犁路
    • 東銀中心

    房源專屬顧問為您服務

    楊亦晗Cassie

    13167276699
    預約看房

    公共交通

    Public transit

    東銀中心

    長 寧虹橋古北紅寶石路500號

    網站地圖